当之无愧的二层现代别墅无冕之王
发布时间:2019-06-23 点击数:1551
现代风别墅在农村越来越受欢迎,当然真正建起来的寥寥无几。在大多数人眼里现代风别墅过于高冷,简约的设计一看就很赏心悦目,可自己想想如果真生活在里面,为了不破坏它的美感只能压抑自己的生活品质了,试想一下现代风别墅里堆满五颜六色的生活用品,想想这画面都不敢看,想露台上添点植物都要考虑再三,这样的房子真的适合居住么?当然,时代在进步,设计师也终于把理论和实际结合起来了,第一次看这个别墅有种浓浓的生活气息,保留了现代别墅简约的外观但不显高冷,这样的别墅可以说是当之无愧的现代别墅无冕之王!一起来跟我瞧瞧吧,看看现在建房新趋势!

外观保留了现代别墅的简约干练,素雅的配色更显气质,坡屋顶的设计洋气而实用,起到了很好的隔热效果,小花园的设计生活气息满满,足不出户照样可以给生活增添乐趣,没事时候呼朋唤友或者和家人弄个室外烧烤都是很好的选择!
立面效果图
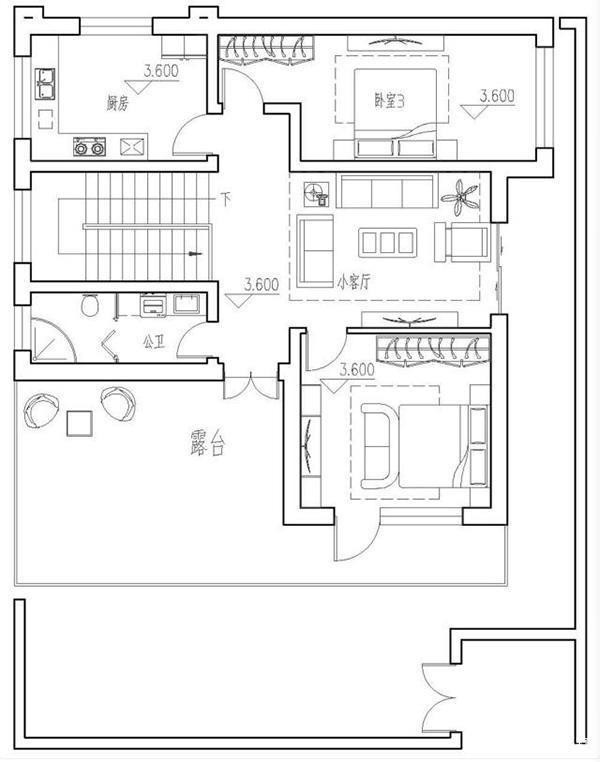
室内设计也很实用,一楼搭配带私卫的老人房,很贴心,整个房子拥有四个卧室,在二层别墅里算是很多,适合小家庭,超大露台,增加层次感同样实用,无论是晾晒衣物还是设计成一个室外会客厅都是很好的选择,二楼厨房如果不需要可以修改成小书房,方便孩子的学习!
很漂亮的一间二层现代小别墅,小家庭别犹豫了!
上一篇:别墅庭院绿化风水和景观石的应用 下一篇:带中庭新中式别墅,父母辈最爱实用户型


版权所有©2011-2019:广州田原景观设计工程有限公司